0
Skip to Content
5400 Mohican Road, Bethesda, MD 20816
Property Details
Video
Photos
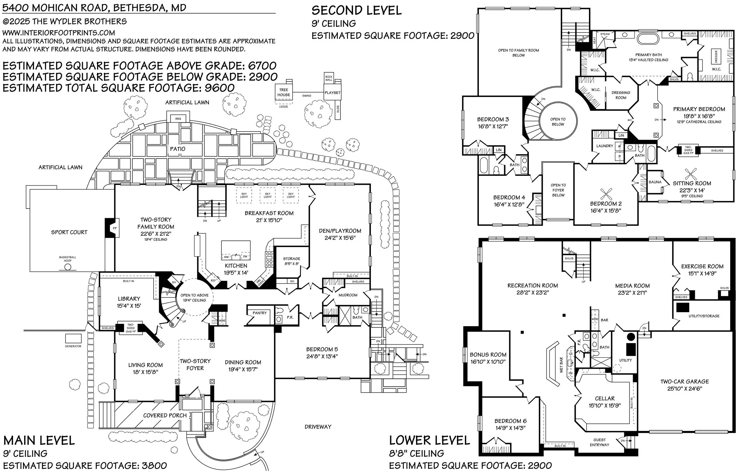
Floor Plans
Contact
5400 Mohican Road, Bethesda, MD 20816
Property Details
Video
Photos
Floor Plans
Contact
Property Details
Video
Photos
Floor Plans
Contact

Hans Wydler

Wydler Brothers of Compass

hans@wydlerbrothers.com

(301) 523-6313‬

wydlerbrothers.com